logoECOINSTEC

 

logo  logo   logo
EMPRESA SERVEIS PROJECTES CLIENTS CONTACTE
   

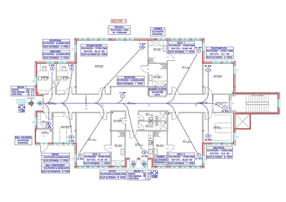
Escola Nadis a Sarrià

 
Actuació:
Nova Planta - Projecte executiu, Direcció d'obra i
Llicència ambiental.
 
Superficie:
825 m2
 
Client:
Fundación Sagrat Cor Sarrià
 
Ubicació:
C/Sagrado Corazon
Barcelona
 
Any:
2009-2010
 
 
       
    Anterior Següent<

 

 

 

Ecoinstec © 2013