logoECOINSTEC

 

logo  logo   logo
EMPRESA SERVEIS PROJECTES CLIENTS CONTACTE
   

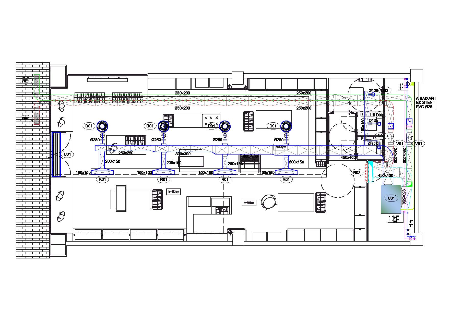
Botiga Diesel La Maquinista

 
Actuació:
Reforma - Projecte executiu, direcció d'obra i
llicència ambiental.
 
Superficie:
123 m2
 
Client:
Diesel Iberia S.A.
 
Ubicació:
Centre Comercial La Maquinista
Barcelona
 
Any:
2012
 
 
       
    Anterior Següent<

 

 

 

Ecoinstec © 2013